Auf dem Firmengelände der Hoffmann Maschinen- und Apparatebau GmbH in Lengede entsteht eine neue Montage- und Versandhalle, die als Überbauung des bestehenden Werkhofs geplant wurde und den traditionsreichen Produktionsstandort zukunftsfähig erweitert. Das Gelände ist durch Gebäude verschiedenster Baujahre und Nutzungen geprägt – vom historischen Mauerwerksbau bis zu modernen Produktionshallen – und bildet ein funktional verzahntes Ensemble. Der Neubau fügt sich präzise in diese heterogene Struktur ein und verbindet bestehende Gebäudeteile zu einem optimierten Gesamtsystem.
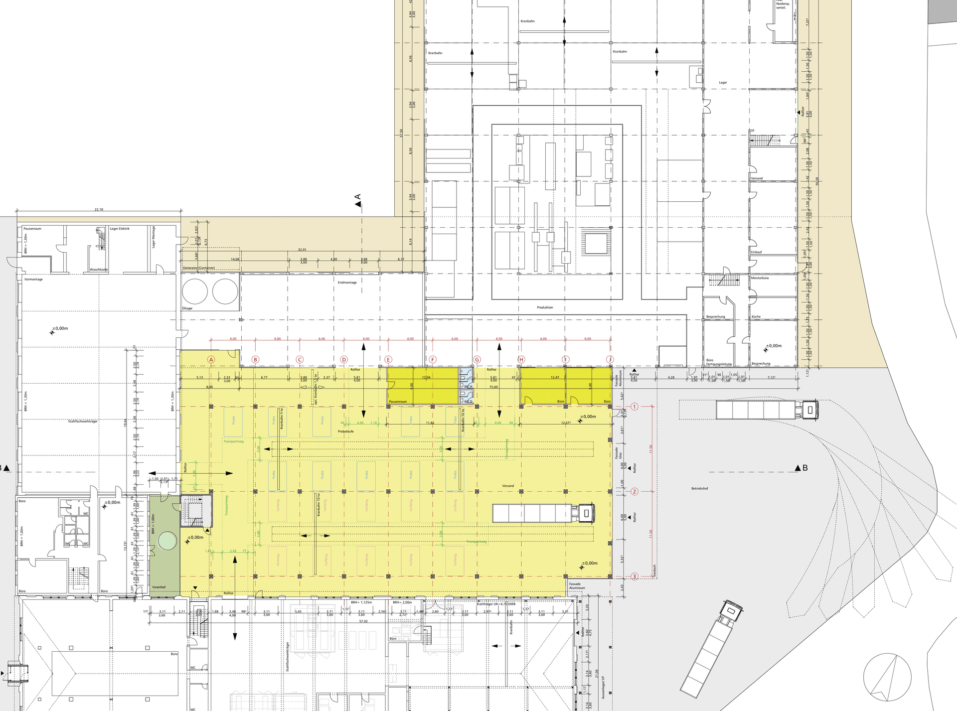
Die Halle überspannt den bisherigen Werkhof und integriert vormals offene Bereiche in einen zusammenhängenden, witterungsgeschützten Produktionsablauf. Von Osten wird die Halle über zwei große Rolltore erschlossen, sodass Transportfahrzeuge direkt in den Montage- und Versandbereich einfahren können. Diese klare Logistikführung trägt dazu bei, Materialflüsse zu vereinfachen und Arbeitsprozesse effizienter zu gestalten. Der Neubau bindet sich dabei eng an die angrenzenden Bestandsgebäude an, wodurch interne Wege verkürzt und bestehende Arbeitsabläufe verbessert werden.
Im Erdgeschoss befinden sich neben den großzügigen Montage- und Versandflächen zusätzliche Funktionsbereiche wie Büroräume, Sanitärzonen und ein Pausenraum. Über dem Pausenraum wurde die Lüftungszentrale integriert, wodurch Flächen effizient genutzt und technische Wege verkürzt wurden. Die Gebäudetechnik mit der neuen Hauptverteilung befindet sich im südlichen Hallenbereich an der Schnittstelle zum Bestand, um die technische Infrastruktur des gesamten Werkareals bestmöglich einzubinden.
Besonders prägend für das Projekt ist der mehrgeschossige westliche Hallenbereich, der neue Arbeitsplätze für die Konstruktionsabteilung aufnimmt. In zwei Obergeschossen entstehen moderne Büroflächen, Besprechungsräume, Bereiche für Kopier- und Drucktechnik, Sanitärbereiche sowie eine Aufenthaltsküche. Von allen Arbeitsplätzen aus bestehen direkte Sichtbeziehungen in die darunterliegende Montage- und Versandhalle, wodurch die räumliche und kommunikative Nähe zwischen Konstruktion, Planung und Fertigung gestärkt wird. Die Erschließung erfolgt über einen neu errichteten Treppenhauskern, der den Neubau logisch in die Bestandswege einbindet.
Gestalterisch orientiert sich die neue Halle an den Proportionen und Höhen der angrenzenden Gebäude, sodass ein harmonisches Gesamtbild entsteht. Unterschiedliche Traufhöhen werden gezielt genutzt, um die Übergänge zu den bestehenden Werkhallen weich zu gestalten. Die Fassade besteht aus horizontalen Metallpaneelen und vertikalen Profilbauglaselementen, die natürliche Belichtung ermöglichen und zugleich eine robuste, industrielle Materialität transportieren. Konstruktiv basiert das Gebäude auf einem Stahlbetonskelettsystem mit großen Spannweiten, das den Einsatz mehrerer Kranbahnen ermöglicht und den Anforderungen an eine moderne Produktionshalle entspricht. Die Dachkonstruktion erfüllt aktuelle energetische und brandschutztechnische Standards und integriert Oberlichter zur gleichmäßigen Tageslichtversorgung der Arbeitsbereiche.
Mit diesem Neubau wird der Standort der Hoffmann Maschinen- und Apparatebau GmbH funktional wie architektonisch weiterentwickelt. Der Entwurf schafft zusätzliche Produktionskapazitäten, verbessert interne Abläufe, stärkt die Verzahnung zwischen Verwaltung und Fertigung und bietet eine zukunftsfähige bauliche Struktur, die Raum für weitere Entwicklungen lässt. Das Projekt zeigt, wie durch die präzise Integration neuer Bauvolumen in einen gewachsenen Bestand ein leistungsfähiger, moderner und langfristig erweiterbarer Industriestandort entsteht.
BGF: 2.500m²
Bauherr: Hoffmann Maschinen- u. Apparatebau GmbH, Lengede
Architekt: ft+ architekten, Braunschweig
Leistungen: LPH 1 - 9 nach HOAI
Projektarchitekten: Stefan Friedrichs, Nicolai Thiele
Mitarbeit: Janina Thiele
Fotos: Bernhard Janitschke







