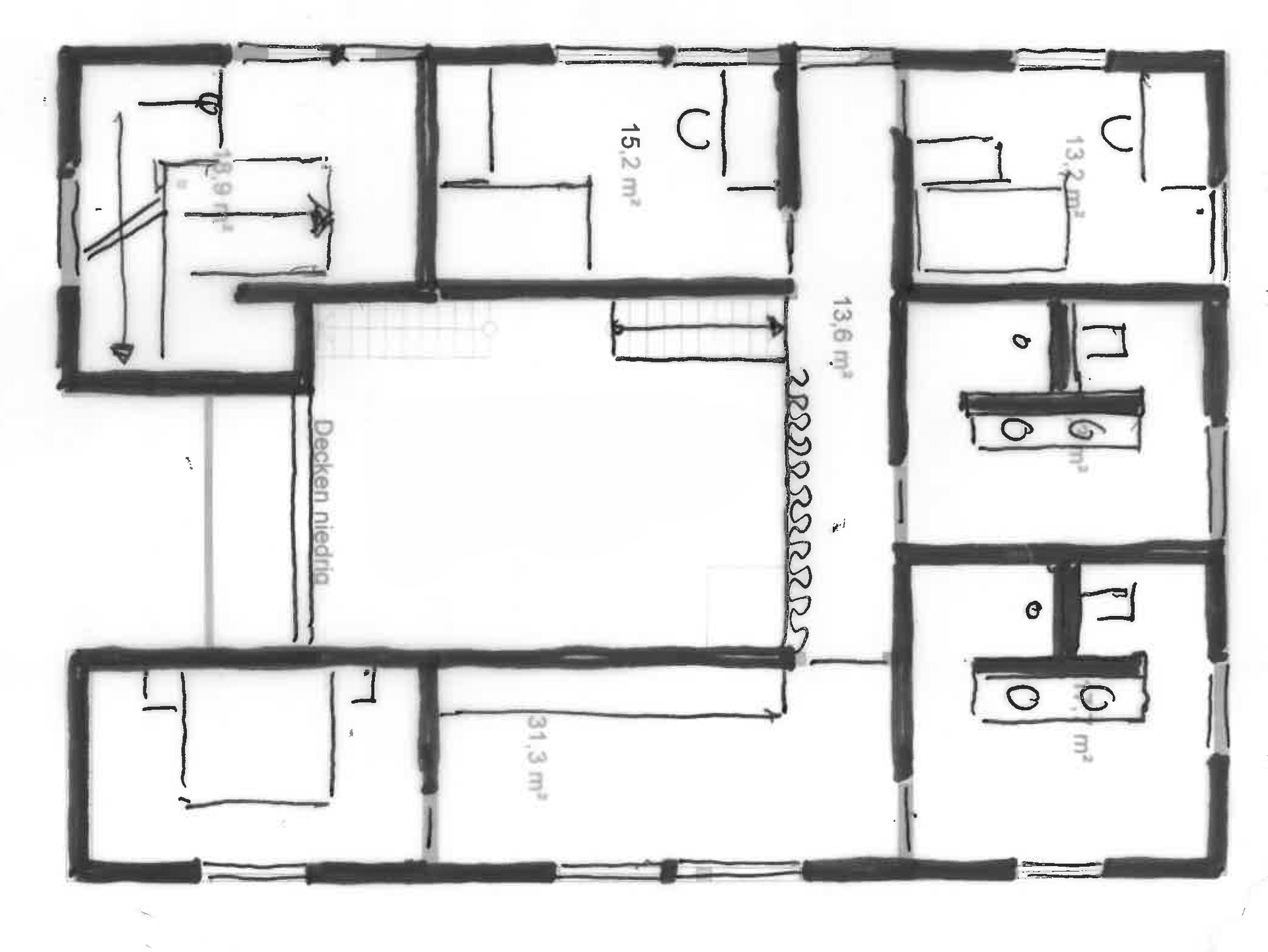
In der Dorfstraße 13A in Braunschweig-Ölper entsteht ein anspruchsvolles Sanierungs- und Modernisierungsprojekt, das die Transformation eines denkmalgeschützten Fachwerkhauses in hochwertigen, zeitgemäßen Wohnraum zum Ziel hat. Das historische Gebäude, ein zweigeschossiges Hallenhaus mit ausgeprägter zentraler Raumfigur und einem weitläufigen Dachgeschoss, wurde zunächst in einem umfassenden Modernisierungsgutachten untersucht. Die Bestandsaufnahme zeigte eine besondere gestalterische Qualität des Sichtfachwerks, der zweigeschossigen Halle und der historischen Tragstruktur, aber zugleich erhebliche funktionale Einschränkungen, insbesondere durch die sehr niedrigen Raumhöhen in den seitlichen Anbauten sowie eine unzureichende Belichtung im Dachraum.
Im Zuge der Voruntersuchung wurde das Gebäude gemeinsam mit der unteren Denkmalschutzbehörde begangen. Dabei bestätigte sich die Bedeutung des Objekts als Einzeldenkmal, sodass sowohl die äußere als auch die innere Struktur hohen denkmalpflegerischen Anforderungen unterliegt. Die zentrale Halle darf in ihrer Kubatur nicht verändert werden, und auch das äußere Erscheinungsbild muss in seinen wesentlichen Merkmalen erhalten bleiben. Zugleich wurde die grundsätzliche Möglichkeit einer Wohnnutzung bestätigt. Eine Aufteilung in zwei Wohneinheiten wurde als geeigneter und genehmigungsfähiger Ansatz bewertet.
Das Planungskonzept konzentriert sich daher auf minimale Eingriffe in die historische Substanz bei gleichzeitig maximaler funktionaler Verbesserung. Im Erdgeschoss bleiben die vorhandenen Raumstrukturen weitgehend erhalten. Die Wohnbereiche werden rund um die zentrale Halle angeordnet und erhalten durch neue Öffnungen sowie mehrere Terrassenbezüge eine stärkere Verknüpfung mit dem umliegenden Garten. Für die zweite Wohneinheit wird das Treppenhaus so erweitert, dass es bereits im Erdgeschoss als eigenständige Erschließungsebene genutzt werden kann.
Ein wesentlicher Schwerpunkt des Projekts liegt in der Verbesserung der Raumhöhen in den seitlichen Bereichen, die bisher kaum nutzbar waren. Hierzu wird im Erdgeschoss die Gründungsebene tiefergelegt und eine neue Stahlbetonbodenplatte als WU-Konstruktion eingebaut. Diese ermöglicht lichte Höhen über zwei Metern und schafft funktionale Wohnräume, ohne die historische Halle zu berühren. Die neue Bodenplatte wird fugenlos als Sichtbetonoberfläche genutzt und erhält eine unterseitige Wärmedämmung. Die vorhandenen Streifenfundamente werden unterfangen und anschließend wieder sichtbar aufgearbeitet, sodass die historische Konstruktion im Innenraum weiterhin ablesbar bleibt.
Für das Obergeschoss wird eine neue, höherliegende Deckenkonstruktion vorgesehen, die sich aus einer innenliegenden Holzständerkonstruktion entwickelt. Diese ersetzt die historisch niedrigen Balkenlagen in den Seitenschiffen und schafft auch hier angemessene Nutzhöhen, ohne in die Halle einzugreifen. Die neuen Konstruktionen dienen zugleich als innenseitige Dämmung der Fachwerkwände und Dachschrägen, ausgeführt mit Holzfaserdämmplatten und Kalkputzoberflächen, die dem Charakter des Gebäudes entsprechen.
Im Dachgeschoss wird die historische Tragstruktur mit ihren Stützen und Kehlbalkenlagen vollständig erhalten und bleibt als raumprägendes Element sichtbar. Die Belichtung des Dachraums erfolgt durch großformatige Dachflächenfenster, die in Kombination mit flächenbündig angeordneten PV-Modulen im Bereich zwischen den Fenstern geplant sind. Diese Lösung ermöglicht eine energetische Optimierung, ohne die historische Dachfläche durch kleinteilige Eingriffe zu zergliedern. Die resultierenden „Estraden“ – erhöhte Bereiche oberhalb der Seitenschiffe – erzeugen eine charakteristische Raumgestalt und erweitern die Nutzfläche auf verschiedenen Ebenen.
Ein besonderes gestalterisches Highlight stellt die Öffnung der historischen Feuerstätte im Erdgeschoss dar. Die massive Außenwand wird hier zugunsten einer Holz-Pfosten-Riegel-Konstruktion mit bodentiefen Verglasungen zurückgebaut, sodass ein neuer, lichtdurchfluteter Wohn- und Küchenbereich entsteht. Die vorgelagerte Terrasse öffnet sich nach Osten und bildet einen atmosphärischen Außenraum, der durch die morgendliche Besonnung besonders attraktiv ist.
Das Modernisierungskonzept verbindet so den respektvollen Umgang mit der historischen Substanz mit einer präzisen Weiterentwicklung für den heutigen Wohnbedarf. Die zentrale Halle bleibt als Herzstück des Hauses unangetastet, während die seitlichen Zonen durch gezielte Eingriffe, neue Deckenlagen und Lichtführungen zu hochwertigen Wohnbereichen transformiert werden. Die denkmalgerechten Maßnahmen, kombiniert mit einer zeitgemäßen technischen Ausstattung und einer sensiblen Materialwahl, führen zu einem besonderen Wohnprojekt, das Tradition und Moderne auf selbstverständliche Weise verbindet.
BGF: 600m²
Bauherr: Heka GmbH, Braunschweig
Architekt: ft+ architekten, Braunschweig
Leistungen: Machbarkeitsstudie, Modernisierungsgutachten
Projektarchitekten: Nicolai Thiele
Mitarbeit: Till Watzlawik





